Reihenhaus zu verkaufen in Hautcharage
Beschreibung
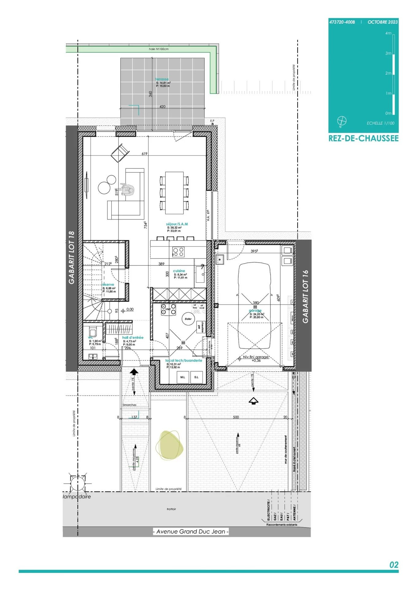
LOT 17: maison unifamiliale jumelée sur un terrain de 3.72 ares avec une surface habitable de +/- 138 m2 et une surface totale de +/-173m2 comprenant:
Rez-de-chaussée :
- Cuisine / séjour avec accès vers la terrasse de 14.81m2 et jardin
- Réserve
- WC séparé
- Garage pour 1 voiture avec 2 emplacements extérieurs
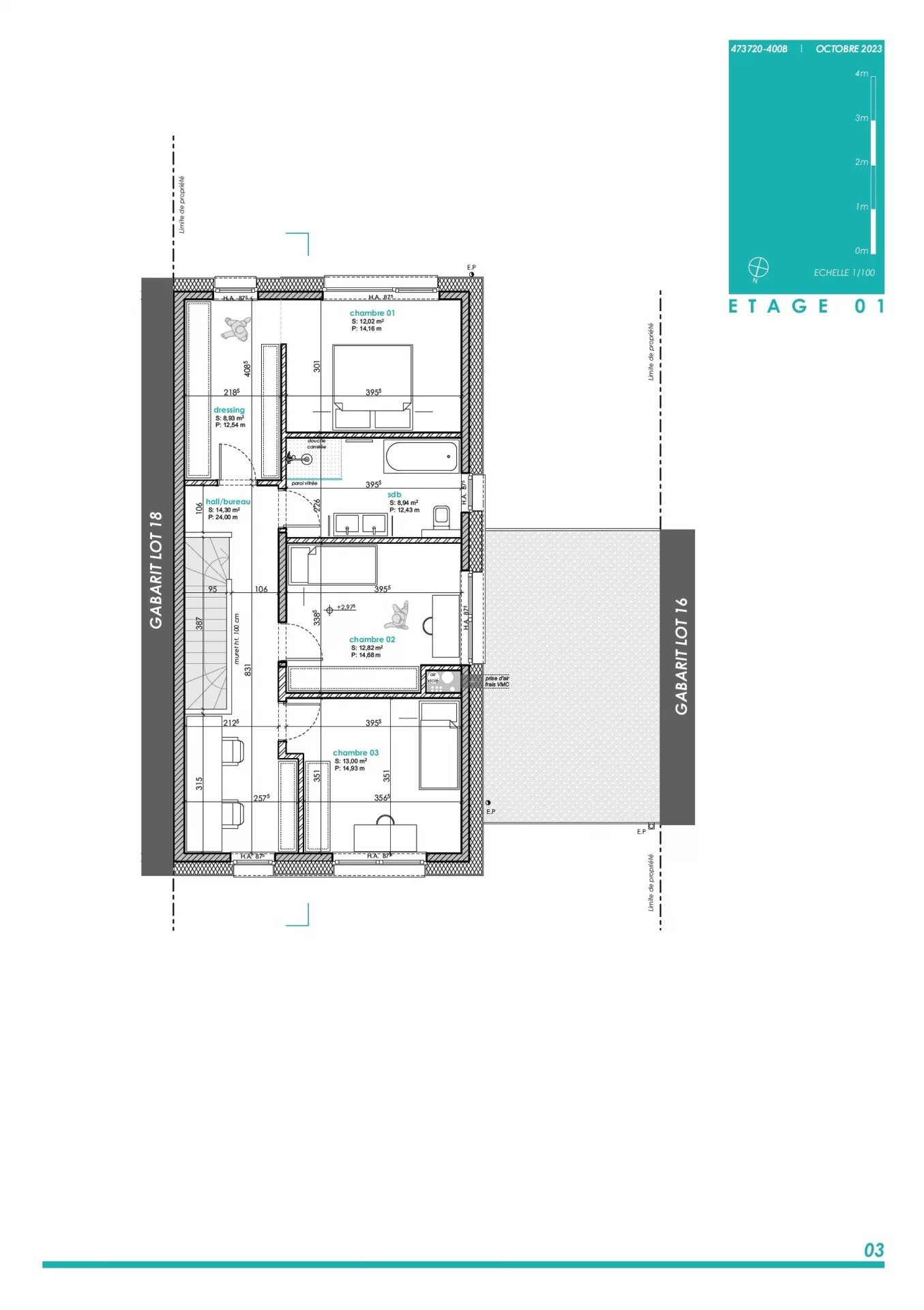
Premier étage :
- 2 chambres à coucher
- 1 chambre parentale avec dressing
- Salle de bain
Prix LOT 17 à: 1.095.000,- € (TVA 17% - pour investissement)
Pour plus d'informations veuillez contacter :
Monsieur Daniel VAZ
GSM: +352 621 757 809
daniel.vaz@fischbach.lu
Le lot 17 est destiné à des personnes physiques éligibles à l’octroi d’une prime de construction ou d’acquisition de la part de l’État pour l’année 2022.Le Lot 17 ne peut être vendu qu’à des personnes éligibles des primes en faveur du logement.
Situation
Hautcharage appartient à la municipalité de Käerjeng dans le canton de Capellen et se situe à la frontière belge au Sud-ouest du pays. La commune se compose des localités de Bascharage, Hautcharage, Linger, Clemency et Fingig. Käerjeng fait partie de la région des terres rouges «Redrock Region» connue pour ses diverses réserves naturelles et ses magnifiques sentiers pédestres et cyclables.
Dans le centre de Hautcharage, vous trouvez l’église baroque du 18ème siècle, quelques restaurants et cafés. Le terrain de jeux «Um Päsch» qui propose une variété d’équipements allant d’une balançoire et d’un toboggan à un jeu d’extérieur et de jeux d’eau.
À Bascharage (1,5 km) on retrouve plusieurs grands supermarchés, restaurants, stations-services et magasins. Les centres sportifs «Käerjenger Dribbel» et « Op Acker » disposent d’une grande installation sportive avec un terrain de foot et une petite piscine. La maison de culture «Käerjenger Treff» organise régulièrement des concerts et des spectacles.
Le «centre aquatique Aquasud» à Differdange est à 8 km et offre un espace Fitness, 6 bassins intérieurs et 2 bassins extérieurs pour se détendre ainsi q’un espace Wellness pour se ressourcer. Le Fun-City de Pétange (5 km) dispose des pistes de bowling, des tables de billard et d’une grande aire de jeux couverte pour les enfants de tous âge.
Le nouveau cinéma « Kinoler » à Kahler se trouve à 7,5 km et est équipé des dernières technologies. Au Belval, le grand «Belval Plaza Shopping Center» est qu’à 14 km et abrite le «Kinepolis Belval», la «Rockhal» et une variété de restaurants et cafés. Les centres commerciaux «La Belle Etoile» et la «City Condorde» sont à 20 minutes en voiture.
Écoles
A proximité immédiate du lotissement «Grand-Duc Jean», dans la rue du X Septembre, se trouve la Crèche «Kaweechelchen», qui a une capacité de 64 enfants âgés de 0 à 4 ans.
«École op Acker» à Bascharage est une école primaire composée de 2 établissements de 18 respectivement 12 classes et dispense des cours en cycle 1-4. Le complexe comprend également une Maison Relais où les enfants à partir de 4 ans peuvent être accueillis en dehors des heures de classe.
En outre, le lycée technique pour les professions de la santé est aussi situé à Bascharage.
Transports
Hautcharage est à 13 km d’Esch sur l’Alzette. La ville de Luxembourg est à 17 km et peut être atteinte en voiture en une demi-heure via l’autoroute A13.
L’arrêt de bus «Hautcharage Crèche» se trouve à 100 m de la propriété et est desservi par les lignes de bus 3, 215, 216, 342 et 355.
Ligne 3: Esch – Belvaux – Bascharage – Linger – Rodange
Ligne 215: Luxembourg/Stäreplaz-Étoile – Bascharage
Ligne 216: Luxembourg – Bascharage
Ligne 342 : Mamer – Schouweiler – Bascharage
Ligne 355 : Sprinkange – Lamadelaine LTMA
La gare la plus proche est Bascharage-Sanem et est à 3,5 km de la propriété. Elle est desservie par la ligne 70 du réseau des Chemins de fer luxembourgeois (CFL), qui relie Longwy en Belgique à la ville de Luxembourg.
Distances
Centre Sportif «Op Acker»: 1,5 km
Cactus Bascharage: 2,8 km
Aire de jeux «Um Päsch»: 350 m
Gare «Bascharage-Sanem»: 3,5 km
«Kinoler» Kaler: 7,4 km
«Aquasud Aquatic Center»: 8,5 km
Belval Plaza: 14,4 km
«Fun City» Pétange: 5,1 km
Centre de commerce «Belle Etoile»: 19,1 km
Luxemburg-Ville: 26,1 km
Aéroport «Findel»: 35,3 km
http://www.fischbach.lu/?q=85908402
Spezifische Eigenschaften
Ausführung & Einschränkungen
Finanzierungsrechner
Rechtlicher Hinweis
Die Bereitstellung des Immobilienkreditsimulators verpflichtet die Bank in keinerlei Hinsicht in Bezug auf die benutzten Simulationsparameter und kann nicht als Werbung, Angebot oder Kreditzusage gewertet werden. Die errechneten Beträge sind unverbindlich, stellen lediglich eine Überschlagrechnung der monatlich zu zahlenden Raten und in keinem Fall eine Zusage der Bank dar.
Ein Problem mit diesem Angebot? Teilen Sie uns mit!
Preis
Preis
Agentur
Jetzt teilen
Treten Sie der Bingo Community bei!
Erstellen Sie Ihr Konto, um Zugriff auf alle unsere Mitglieder-Funktionen und Extras zu erhalten.
- Speichern Sie Ihre Suchaufträge
- E-Mail Benachrichtigungen empfangen
- In Favoriten speichern
- Exklusive Vorteile unserer Partner
- Weitere neue Funktionen werden folgen
Ein Problem mit diesem Angebot? Teilen Sie uns mit!